Neubauwohnung 2 SZ – Energieklasse A, SW-Terrasse

Standort
4710 Lontzen
Adresse
rue de limbourg 121
Etage
1

Neubauwohnung 2 SZ – Energieklasse A, SW-Terrasse

Kaufpreis 341.550 €
Zimmer 3
Schlafzimmer 2
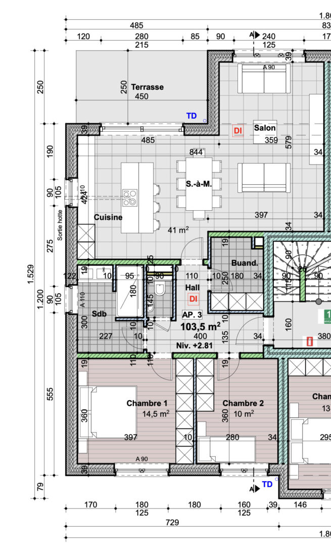
Wohnfläche ca. 104 m²
Gesamtfläche ca. 104 m²

Objektbeschreibung

In Lontzen: moderne Neubauwohnung mit 2 Schlafzimmern und Energieklasse A. Ausgestattet mit Wärmepumpe, Fußbodenheizung und Photovoltaikanlage. Voll ausgestattete Küche inklusive. Genießen Sie eine herrliche Südwest-Terrasse mit freiem Blick auf die Natur und traumhaften Sonnenuntergängen. Parkplatz optional für 4.000 €. Eine seltene Gelegenheit!

Ausstattung

Personenaufzug
Ja
Gäste WC
Ja

Objektdaten

Standort
4710 Lontzen
Adresse
rue de limbourg 121
Etage
1
Wohnfläche
ca. 104 m²
Gesamtfläche
ca. 104 m²
Anzahl Zimmer
3
Anzahl der Schlafzimmer
2
Anzahl Badezimmer
1
Anzahl separater WCs
1
Anzahl Terrassen
1
Kaufpreis
341.550 €
Baujahr
2026
Zustand
Neuwertig
Verkaufstatus
Verfügbar

Kontaktdaten

Baujahr2026
Energie­ausweistypVerbrauchsausweis
Energieeffizienz KlasseA
EnergieträgerLuftwärmepumpe
A+
A
B
C
D
E
F
G
H

Lagebeschreibung