Dieses attraktive Renditeobjekt besteht aus 2 Häusern und 1 Wohnung mit einer Gesamtwohnfläche von ca. 516 m² auf einem Grundstück von 2.641 m².
Die Immobilie wurde 2025 umfassend renoviert und generiert aktuell einen stabilen Netto-Cashflow von ca. 66.000 € jährlich (nach Abzug von Verwaltung und Steuern), was einer Rendite von ca. 8,6 % entspricht.
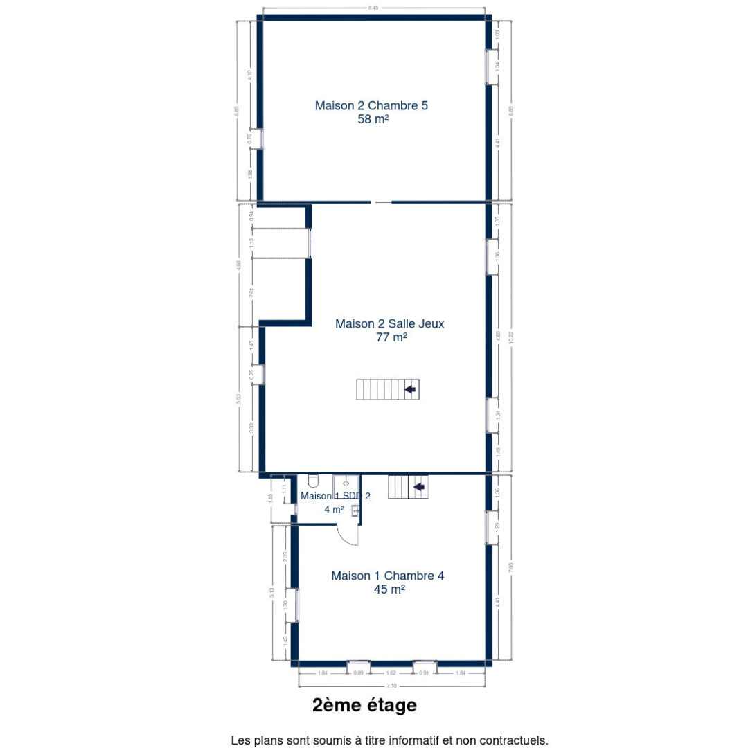
Aufteilung & Ausstattung:
3 separate Wohneinheiten
ca. 11 Schlafzimmer
5 Badezimmer
mehrere Wohn- und Küchenbereiche
ausgebauter Speicher
2 Garagen + Außenstellplätze
Technische Merkmale:
Elektrik konform
Energieausweise: C, D, E
Zentralheizung (Heizöl)
Doppelverglasung
Besonderheiten für Investoren:
Genehmigte touristische Nutzung (1 Haus + 1 Wohnung)
Weiteres Genehmigungspotenzial für das zweite Haus
Sofort laufender Betrieb mit stabilem Einkommen
Skalierbares Geschäftsmodell (Ferienvermietung)
Lage:
Ruhige und grüne Umgebung in Büllingen mit guter Erreichbarkeit und hoher Attraktivität für Erholungstourismus.
Fazit:
Ein seltenes Investment mit hoher Nettorendite, bestehendem Cashflow und weiterem Entwicklungspotenzial.






































